×
北京
手机博洛尼 售前:400-6868-692 售后:400-666-3706
所在位置/首页优秀案例/保利锦上
点击浏览下一张
案例信息
  • 楼盘名称
  • 案例风格
  • 保利锦上
  • 中古
  • 案例户型
  • 服务店面
  • 案例面积
  • 设计师
  • 110㎡
  • 许从筠
案例说明

本案是110㎡中古风格,方案采用整体公私分区清晰,入户玄关完成收纳过渡,客餐厨一体化连通,打造无阻碍洄游动线,日常互动、卧室照看孩童便捷流畅。整体布局动线短、折返少、利用率高,搭配温润中古质感与充足收纳,兼顾颜值、舒适与实用性,适配家庭长久温馨居住。

客厅
更多客厅灵感

整体色调温润柔和,保留了中古风格的复古慵懒、温润肌理,又融入现代简约与法式的优雅精致,整体松弛高级,兼具颜值与实用收纳。

客厅
更多客厅灵感

客厅整体感觉温柔复古、松弛静谧,法式优雅糅合中古温润,低饱和柔和色调+温润木色,简约克制又满是慵懒高级的居家质感,氛围感慵懒治愈。

卧室
更多卧室灵感

卧室窗边延伸出宽大飘窗榻榻米,可休憩可办公,最大化利用采光;人字拼木纹地板、奶白柔和墙面+简洁吊顶线条,整体低饱和度配色克制高级,满是安静安稳、放松慵懒的休憩氛围。

书房
更多书房灵感

奶米色软沙发温润治愈,搭配复古曲线吊灯、暖棕窗帘与艺术挂画,氛围感十足,整体色调低饱和、线条干净利落,采光柔和通透,是一处安静放松、慢享闲暇时光的治愈角落。

厨房
更多厨房灵感

深棕木纹吊柜+哑光深色地柜,沉稳利落,黑白花砖地面呼应全屋复古基调,L型动线布局实用紧凑,整体复古高级又干净利落,烟火气里满是精致格调。

玄关
更多玄关灵感

奶调柔和基底,洞洞板墙面实用又灵动,内嵌灯带的展示柜温润有层次;黑白棋盘格地砖、复古拱形铁艺门做点睛,木色台阶柔化动线,整体简约利落,兼具松弛复古质感与收纳实用性,精致又不刻意。

卫生间
更多卫生间灵感

暗调橄榄绿做旧竖纹墙砖奠定复古底色,搭配白色复古花砖地面,层次柔和耐看,整体质感温润又优雅,兼具法式复古的精致与中古的松弛慵懒,高级又充满年代韵味。

卫生间
更多卫生间灵感

深胡桃木收纳柜嵌入洗衣机,暖光灯带烘托质感,增加储物空间,,百叶窗引入柔和自然光,整体紧凑规整、质感统一,复古耐看又整洁实用。

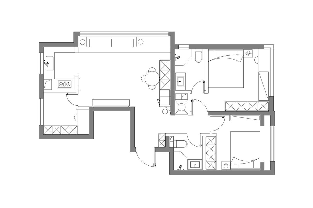
户型图
更多户型图灵感

本案为110㎡,采用动静分区,公共与私密区分隔明确,布局整体空间浪费极少,格局方正实用,兼顾通透感、实用性与居住舒适度,非常适合中小面积住宅。

本案设计师

许从筠

高级主任设计师

  1. 168次
  2. 预约数
  1. 13年
  2. 从业年限
  1. 9套
  2. 作品案例

预约TA

中古风格的其它案例
更多

【案例】【康乐里小区】中古 二居室 103㎡

张洋 张洋 6 3674浏览 这样装修多少钱?

【案例】【枫丹丽舍】中古 三居室 160㎡

吕宏音 吕宏音 6 1971浏览 这样装修多少钱?

【案例】【棕榈泉国际公寓】中古 三居室 135㎡

渠海东 渠海东 9 2905浏览 这样装修多少钱?

二居室的其它案例
更多

【案例】【御墅临枫】古典 二居室 180㎡

魏焕和 魏焕和 7 3884浏览 这样装修多少钱?

【案例】【民岳家园】古典 二居室 100㎡

尚君 尚君 6 3539浏览 这样装修多少钱?

【案例】【世纪城】古典 二居室 125㎡

赵保祚 赵保祚 6 3370963浏览 这样装修多少钱?