







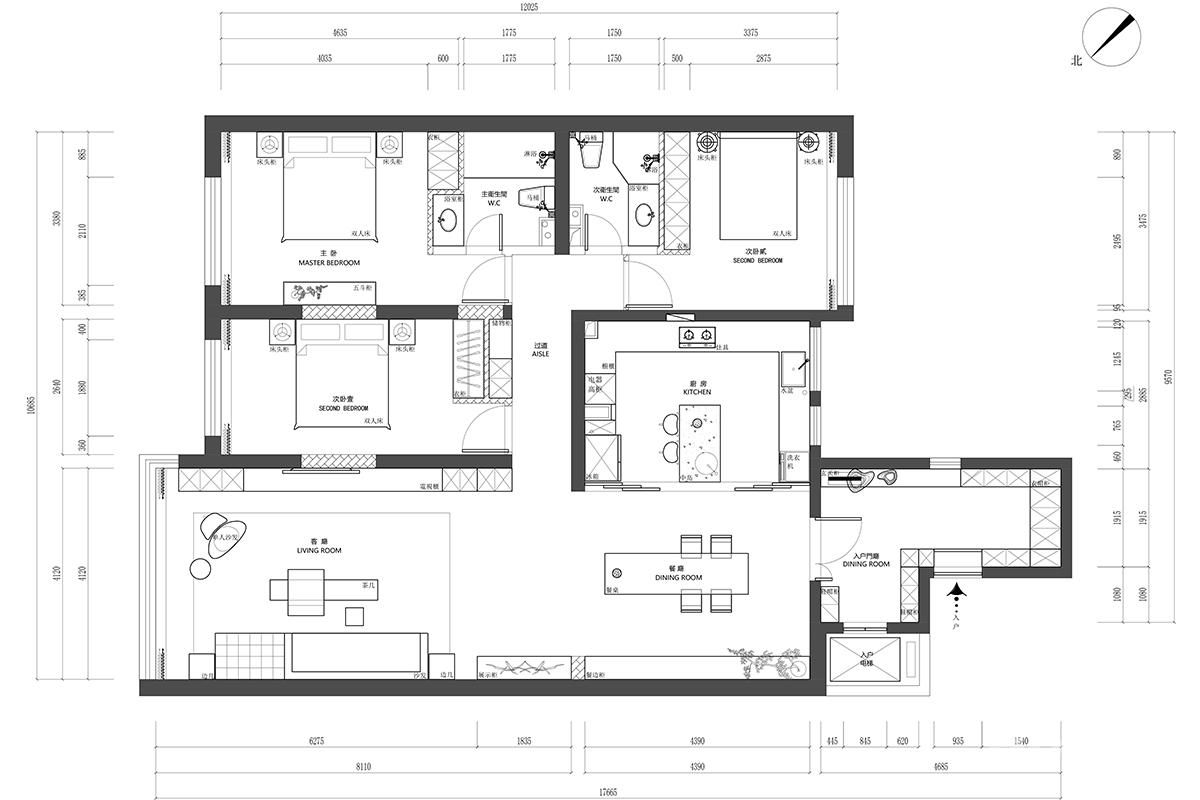
本方案为京城雅居 178㎡三室两厅两卫户型的优化设计,采用 LDK 横厅一体化布局,打通客餐厨的空间边界,打造超尺度公共活动区,最大化利用南侧的大面宽采光,让公共区通透开阔,家人互动动线流畅无阻。 静区规划三间卧室,配置双独立卫生间,主卫采用三分离设计,满足多人口家庭同时使用的需求,互不干扰。入户玄关设置满墙定制收纳,解决入户收纳痛点,家政区整合至厨房旁,功能集约。整体动静分区清晰,在有限面积内实现了功能齐全、舒适通透的多元居家体验。
更多客厅灵感
这是一套现代自然风客厅,深浅木撞色的电视墙,嵌入大屏电视,两侧错落开放格搭配暖光灯带,兼顾收纳与展示。左侧悬挂式壁炉成为空间的点睛之笔,造型独特,为空间注入温暖的仪式感。编织扶手椅与墨绿色边几,注入自然松弛的细节,玻璃与实木茶几碰撞质感。无主灯设计搭配充足采光,整体克制又有细节,打造出高级治愈、充满温度的居家氛围。
更多客厅灵感
超通透的现代自然风大横厅,浅木与奶白护墙打底,空间干净开阔。右侧悬浮式深木电视墙搭配悬挂壁炉,兼顾影音功能与温暖氛围。左侧艺术浮雕背景墙,注入艺术巧思,打破空间单调。棕色沙发搭配编织单椅,混搭出松弛的自然质感,大落地窗搭配白纱帘,引入充足采光。整体纵深开阔,无主灯设计让光线柔和,打造出高级通透、充满艺术感的治愈公共区。
更多客厅灵感
现代自然风客厅,错落立体浮雕背景墙,自带艺术肌理感,打破了白墙的单调。焦糖色豆腐块沙发搭配编织单椅,混搭出松弛的自然质感,墨绿色边几注入鲜活细节。艺术感落地灯与玻璃茶几,为空间增添设计巧思。无主灯设计搭配大窗采光,光线柔和均匀,整体克制又充满细节,打造出高级治愈、充满艺术氛围的松弛居家空间。
更多餐厅灵感
现代自然风餐厅,罗马洞石打造的超长岛台成为视觉焦点,天然纹理自带温润的自然质感,为空间注入复古高级的氛围。背后浅木通顶餐边柜,内嵌暖光开放格,兼顾收纳与展示。藤编餐椅搭配原木家具,搭配错落的绿植,把自然生机引入室内。无主灯柔光设计,让整个空间干净柔和,打造出松弛治愈、充满自然气息的用餐空间。
更多餐厅灵感
现代自然风餐厨过渡区,罗马洞石岛台延续了全屋的自然质感,天然纹理温润高级。左侧黑框玻璃推拉门,巧妙隔断厨房家政区,挡油烟的同时不遮挡采光,保持空间通透。右侧浅木餐边柜搭配洞石收边,和岛台设计呼应,内嵌暖光开放格,兼顾收纳与展示。错落绿植注入自然生机,悬浮顶灯柔光均匀,打造出整洁通透、松弛治愈的全能功能区。
更多餐厅灵感
现代自然风餐厨区,罗马洞石打造的岛台,天然纹理温润高级,延续了全屋的自然质感。藤编餐椅注入温润细节,搭配小绿植,把自然生机引入空间。黑框玻璃推拉门隔断厨房,挡油烟的同时不遮挡采光,让厨房内部也通透明亮,同时隐藏了家政区,保持外部整洁。悬浮顶灯柔光均匀,整体干净通透,打造出松弛治愈、功能齐全的餐厨空间。
更多厨房灵感
现代自然风厨房,奶白整体橱柜搭配洞石背板,延续了全屋的自然质感,干净通透。中间宝格丽大理石岛台成为点睛之笔,天然纹理高级吸睛,搭配金色吧椅,兼顾操作与简餐功能。嵌入式冰箱、烤箱,还有侧边的洗衣机,功能集约齐全。大窗引入充足采光,线性轨道灯补足操作照明,整体动线流畅,打造出整洁高级、功能齐全的全能烹饪家政区。
更多户型图灵感
本方案为京城雅居 178㎡三居两卫的现代自然风全案,采用 LDK 大横厅布局,最大化利用南侧大面宽采光,打造通透公共区,动线流畅。 静区规划三卧室,配双独立卫生间,主卫做三分离设计,满足多人口家庭同时使用、互不干扰的需求。入户满墙定制柜解决收纳痛点,家政区功能集约,全屋以自然材质,打造出治愈通透的舒适居家体验。