×
北京
手机博洛尼 售前:400-6868-692 售后:400-666-3706
所在位置/首页优秀案例/阳光花园
点击浏览下一张
案例信息
  • 楼盘名称
  • 案例风格
  • 阳光花园
  • 现代
  • 案例户型
  • 服务店面
  • 案例面积
  • 设计师
  • 62㎡
  • 王锋
案例说明

整套方案围绕男业主的想法进行设计,男业主喜欢户外运动,对生活品质要求较高,全屋采用无主灯设计搭配原木进行设计尽显高级感

客厅
更多客厅灵感

整体空间采用无主灯设计,灰白色调搭配原木设计,搭配柔和灯光尽显高贵大气,客户喜欢运动,增加了自行车挂墙设计

卧室
更多卧室灵感

卧室朝阳,采用折叠书桌设计最大限度增加办公空间,更好的利用了床与书桌的关系,采用隐藏门设计很好的隐匿了衣帽间

卧室
更多卧室灵感

整体空间以深咖色为主搭配墙板,无主灯与玻璃门设计瞬间提升整体空间质感,书桌采用定制悬空设计增加可活动空间

厨房
更多厨房灵感

厨房采用L型灶台,整体橱柜采用按弹器免拉手设计搭配奶咖色柜体有效提升整体柜子的美观度,吊柜采用开放格设计方便拿取物品

卫生间
更多卫生间灵感

卫生间利用淋浴房增设壁龛增加储物空间,镜柜采用开放格设计增加储物哦储物,墙地砖同样采用柔光转设计,方便打理

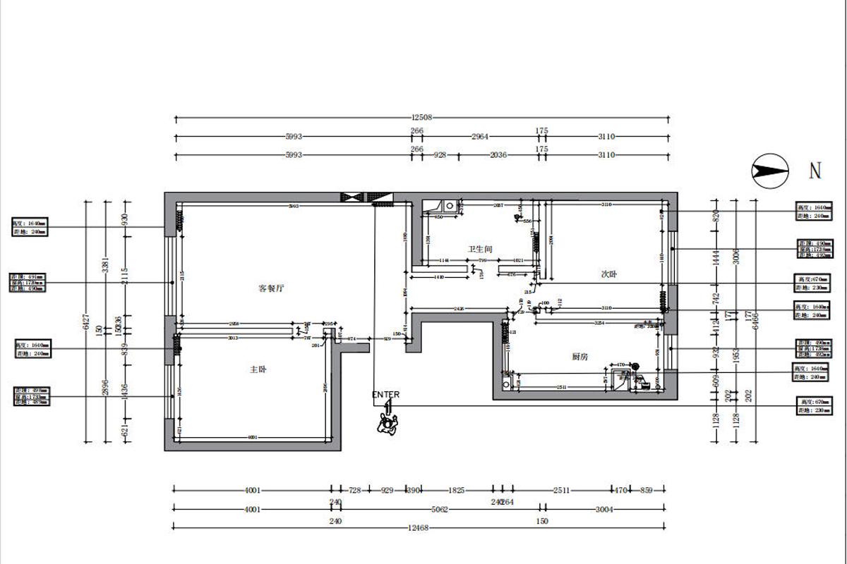
户型图
更多户型图灵感

客户为全屋无主灯设计,该户型在原有格局基础之上通过卫生间与次卧墙体之间距离的改变增加出衣帽间的空间,有效增加储物空间

本案设计师

王锋

主任设计师

  1. 168次
  2. 预约数
  1. 17年
  2. 从业年限
  1. 42套
  2. 作品案例

预约TA

现代风格的其它案例
更多

【案例】【金茂府】现代 四居室 140㎡

渠海东 渠海东 7 844976浏览 这样装修多少钱?

【案例】【万国城】现代 二居室 130㎡

霍俐明 霍俐明 7 4382008浏览 这样装修多少钱?

【案例】【棠颂】现代 别墅 360㎡

李延玲 李延玲 12 3548123浏览 这样装修多少钱?

二居室的其它案例
更多

【案例】【御墅临枫】古典 二居室 180㎡

魏焕和 魏焕和 7 3939浏览 这样装修多少钱?

【案例】【民岳家园】古典 二居室 100㎡

尚君 尚君 6 3613浏览 这样装修多少钱?

【案例】【世纪城】古典 二居室 125㎡

赵保祚 赵保祚 6 3371040浏览 这样装修多少钱?