





本方案以现代简约为骨,功能温度为魂,基于博洛尼 “整体家装” 体系,深度挖掘户型潜力,融合现代生活需求,打造 “简而有致、功能复合、隐奢于境” 的居住空间,诠释 “少即是多,简亦生暖” 的设计哲学,实现 “空间高效、生活自在、美学共鸣” 的居住理想。
更多客厅灵感
本客厅延续整体现代简约风格脉络,以 “简而有质,烟火为魂” 为核心理念,借开放布局、质朴材质与功能温度,打造 “实用与美学共生,烟火与品质交融” 的社交场域,诠释 “少即是多,简亦生暖” 的设计哲学,实现 “空间为人服务,设计回归本真” 的居住理想。
更多客厅灵感
本空间延续整体现代简约风格脉络,以 “简而有质,藏露共生” 为核心理念,借 **“整墙收纳 + 开放展示 + 休闲融合”** 设计,打造 “功能与美学共生,烟火与品质交融” 的复合场域,诠释 “少即是多,藏露相宜” 的设计哲学,实现 “空间为人服务,设计回归本真” 的居住理想。
更多餐厅灵感
本餐厅延续整体现代简约风格脉络,以 “简而有质,烟火为魂” 为核心理念,借开放布局、质朴材质与功能温度,打造 “实用与美学共生,烟火与品质交融” 的用餐场域,诠释 “少即是多,简亦生暖” 的设计哲学,实现 “空间为人服务,设计回归本真” 的居住理想
更多餐厅灵感
本空间延续整体现代简约风格脉络,以 “藏露共生,热爱可视化” 为核心理念,借整墙定制柜实现 “收纳 + 展示 + 休闲” 复合功能,打造 “功能与美学共生,烟火与热爱交融” 的生活场域,诠释 “少即是多,藏露相宜” 的设计哲学,让空间承载兴趣与日常。
更多卧室灵感
本空间延续整体现代简约风格脉络,以 “藏露共生,热爱可视化” 为核心理念,借整墙定制柜实现 “收纳 + 展示 + 休闲” 复合功能,打造 “功能与美学共生,烟火与热爱交融” 的生活场域,诠释 “少即是多,藏露相宜” 的设计哲学,让空间承载兴趣与日常。
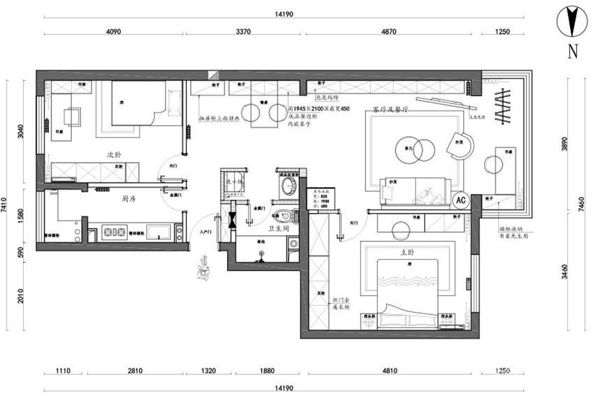
更多户型图灵感
本方案以 **“简而有致,功能为魂”** 为核心理念,基于博洛尼 “整体家装” 体系,深度适配户型结构与现代生活需求,打造 “开放交融、功能复合、隐奢于简” 的居住空间,诠释 “少即是多,简亦生暖” 的设计哲学,实现 “空间为人服务,设计回归本真” 的居住理想。