×
北京
手机博洛尼 售前:400-6868-692 售后:400-666-3706
所在位置/首页优秀案例/国美第一城
点击浏览下一张
案例信息
  • 楼盘名称
  • 案例风格
  • 国美第一城
  • 现代
  • 案例户型
  • 服务店面
  • 案例面积
  • 设计师
  • 90㎡
  • 周超
案例说明

该户型的原始结构为两居两卫,将主卫更改为衣帽间及书房,形成套房,整体为现代意式简约风格,大面积使用深色板材及石材搭配

客厅
更多客厅灵感

该项目整体风格为现代意式风格,电视柜主体采用深黑色胡桃木及石材搭配,格栅处为主卧的内门,采用了隐形门的方式

客厅
更多客厅灵感

该项目整体顶面为无主灯设计,与阳台的哑口位置采用圆弧弧化设计,弱化梁的存在,背景墙使用石材与电视柜进行呼应

卧室
更多卧室灵感

将主卧卫生间更改为书房及衣帽间,整体依旧使用大面积的深黑色板材,整体感官干净,整齐,高级,床头护墙板与书桌背板使用同一板材进行空间延续

卧室
更多卧室灵感

次卧将飘窗部分进行有效利用,床头收纳柜延伸出书桌直至飘窗,有效利用空间的整体立面空间,采用深灰色搭配白色

厨房
更多厨房灵感

厨房整体依旧使用意式风格,深灰色的地柜搭配白色的吊柜,整体设计简单干净高级,动线搭配合理,两扇玻璃门点缀减少沉闷感

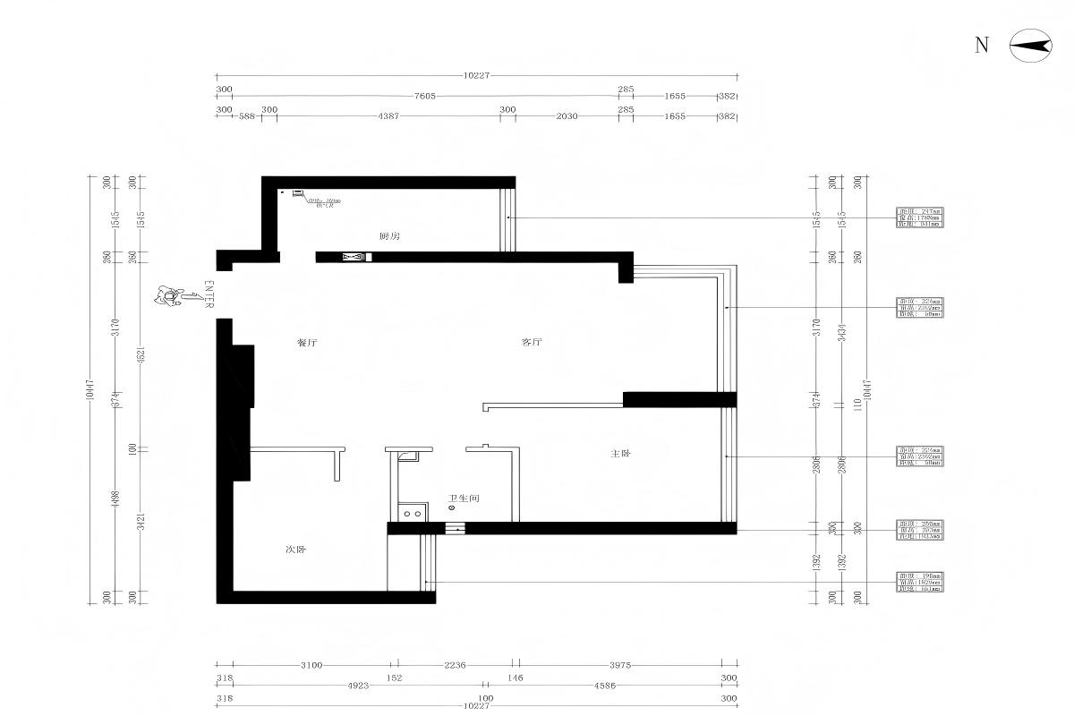
户型图
更多户型图灵感

将原有次卫进行恢复,将原有主卫改造为主卧的衣帽间和书房,保留原有次卧,整体格局变动不大,设计要点为意式风格的元素搭配

本案设计师

周超

资深设计师

  1. 168次
  2. 预约数
  1. 10年
  2. 从业年限
  1. 28套
  2. 作品案例

预约TA

现代风格的其它案例
更多

【案例】【金茂府】现代 四居室 140㎡

渠海东 渠海东 7 845335浏览 这样装修多少钱?

【案例】【万国城】现代 二居室 130㎡

霍俐明 霍俐明 7 4382358浏览 这样装修多少钱?

【案例】【棠颂】现代 别墅 360㎡

李延玲 李延玲 12 3548717浏览 这样装修多少钱?

二居室的其它案例
更多

【案例】【御墅临枫】古典 二居室 180㎡

魏焕和 魏焕和 7 4682浏览 这样装修多少钱?

【案例】【民岳家园】古典 二居室 100㎡

尚君 尚君 6 4530浏览 这样装修多少钱?

【案例】【世纪城】古典 二居室 125㎡

赵保祚 赵保祚 6 3371712浏览 这样装修多少钱?