×
北京
手机博洛尼 售前:400-6868-692 售后:400-666-3706
所在位置/首页优秀案例/丰台区 西府颐园 畅和园
点击浏览下一张
案例信息
  • 楼盘名称
  • 案例风格
  • 丰台区 西府颐园 畅和园
  • 现代
  • 案例户型
  • 服务店面
  • 案例面积
  • 设计师
  • 87㎡
  • 王锋
案例说明

客户为三口之家,日常对会客需求不多,追求生活品质,该户型在原有布局不改动的基础之上打破传统客厅布局采用去客厅化设计,卧室在原有衣柜之中采用亮色点缀既能储物又增加了看点

客厅
更多客厅灵感

客户日常对会客需求不多,客厅主要采用西厨加岛台设计,酒柜采用玻璃门设计加绿色进行点缀更好提升整体质感

卧室
更多卧室灵感

卧室整体色调以奶咖色为主,衣柜采用开放格设计,既能储物同时利用绿色加灯带设计对整个衣柜进行了很好的点缀,红色椅子与绿色开放格相呼应,打破整体空间的统一性

卧室
更多卧室灵感

卧室衣柜采用开放格加灯带设计既增加储物空间,又能更好拿取与展示物品,床头采用墙板设计搭配原木色木地板进行搭配整体空间更加温馨

厨房
更多厨房灵感

厨房采用U字形橱柜设计最大限度的利用了洗切炒操作空间,橱柜旁边增加电气柜设计既能收纳电器又可以增加厨房的储物空间,一举两得

卫生间
更多卫生间灵感

卫生间采用干湿分离设计,在淋浴空间增加壁龛进行储物,部分墙砖采用小花砖形式进行点缀,整体空间不在单调

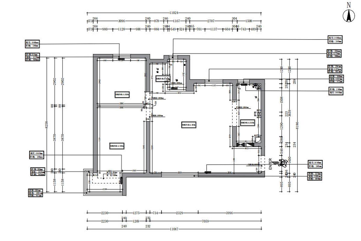
户型图
更多户型图灵感

客户为三口之家,该户型在原有布局不改动的基础之上打破传统客厅布局改为去客厅化设计采用岛台与西厨搭配设计,丰富整体空间设计的同时扩大了活动空间

本案设计师

王锋

主任设计师

  1. 168次
  2. 预约数
  1. 17年
  2. 从业年限
  1. 42套
  2. 作品案例

预约TA

现代风格的其它案例
更多

【案例】【金茂府】现代 四居室 140㎡

渠海东 渠海东 7 844975浏览 这样装修多少钱?

【案例】【万国城】现代 二居室 130㎡

霍俐明 霍俐明 7 4382008浏览 这样装修多少钱?

【案例】【棠颂】现代 别墅 360㎡

李延玲 李延玲 12 3548123浏览 这样装修多少钱?

二居室的其它案例
更多

【案例】【御墅临枫】古典 二居室 180㎡

魏焕和 魏焕和 7 3938浏览 这样装修多少钱?

【案例】【民岳家园】古典 二居室 100㎡

尚君 尚君 6 3613浏览 这样装修多少钱?

【案例】【世纪城】古典 二居室 125㎡

赵保祚 赵保祚 6 3371037浏览 这样装修多少钱?