








本方案以“温柔治愈+实用主义”为核心,将奶油风的柔和质感与现代简约的利落线条融合,打造出甜而不腻的理想居所。整体空间以低饱和度暖调为基底,通过色彩、材质与光影的三重联动,实现“视觉舒适+居住松弛”的双重体验。 一、色彩体系:暖调基底的层次营造 - 主色调:墙面选用奶白色艺术涂料(如微水泥肌理),地面通铺浅橡木色人字拼地板,奠定温柔基调; - 过渡色:局部墙面(如玄关、床头)用浅奶茶色做跳色,柜体门板选肤感奶咖色,通过同色系深浅变化增加层次感; - 点缀色:以原木色的家具、莫兰迪绿抱枕、绿植(琴叶榕、龟背竹)作为点睛,避免大面积冷色破坏了整体的氛围感。 整体设计“暖调包裹+细节柔化”。
更多客厅灵感
本客厅以“极简线条+暖调质感”为设计核心,通过色彩、材质与功能的三重融合,打造出兼具收纳与展示功能的高级感空间。 一、色彩与材质:采用低饱和暖调的温柔包裹 - 柜体设计:浅米色通顶柜与胡桃木色开放格形成“封闭+开放”形成对比,玻璃门格内置了灯带,提升展示区精致感; - 地面与软装:浅灰地毯搭配深咖色茶几,通过“暖灰+深咖”平衡视觉层次;茶几上的白色花瓶、干花与柜体摆件呼应,强化了整体的风格。
更多客厅灵感
本客厅设计以“低饱和暖调+极简线条”为核心,打造出兼具舒适感与高级感的现代空间。 一、色彩与材质:温柔质感的视觉平衡 - 墙面与柜体:浅米色墙面搭配同色系通顶柜,弱化空间边界感; - 软装与家具:浅灰地毯、深咖茶几、浅咖沙发形成“暖灰+深咖”的层次对比,绒面沙发与金属茶几腿碰撞出“柔+刚”的质感。整体设计通过“色彩柔和化、功能一体化、细节精致化”,让客厅成为“实用与美学”兼具了的理想生活场景。
更多餐厅灵感
本餐厅以“柔和质感+功能美学”为设计核心,融合用餐、轻食制作与展示功能,打造出兼具舒适与精致感的空间。 一、色彩与材质:低饱和暖调的温柔包裹 - 柜体与墙面:浅米色通顶柜与胡桃木色开放格形成“封闭+开放”对比,开放格内置灯带,提升展示区精致感; - 餐桌与座椅:大理石纹餐桌搭配绒面浅灰餐椅,黑色金属椅腿增添利落感;绿植、玻璃器皿等软装丰富层次。 整体设计通过“色彩柔和化、功能一体化、细节精致化
更多餐厅灵感
餐桌与座椅:大理石纹餐桌搭配绒面浅灰餐椅,黑色金属椅腿增添利落感;绿植、玻璃器皿等软装丰富层次。 二、功能布局:用餐与轻食的无缝衔接 - 用餐区:居中摆放餐桌,搭配长条形吊灯,营造温馨用餐氛围; - 轻食区:胡桃木色背景墙+白色台面,嵌入咖啡机、水壶等小家电,满足日常轻食制作; - 展示区:开放格陈列酒瓶、餐具,灯带设计强化展示效果。 三、氛围营造:光影与细节的治愈感 适配现代都市人的居家
更多卧室灵感
本卧室以“柔和静谧+功能融合”为设计核心,将现代简约的利落感与奶油风的温润质感结合,打造出兼具休憩与工作功能的治愈空间。 一、色彩与材质:低饱和暖调的温柔包裹 - 墙面与柜体:浅米色墙面搭配同色系通顶衣柜,弱化柜体存在感;胡桃木色地板+浅灰地毯,通过“木色+暖灰”平衡视觉层次; - 床品与软装:浅灰床品搭配深灰床尾毯、格纹抱枕,黑色皮质床头形成“深浅碰撞”;两幅水墨挂画增添东方意境,避免太单调
更多厨房灵感
本厨房以“柔和质感+高效实用”为核心,将奶油风的温润与现代简约的利落融合,打造出治愈系烹饪空间。整体以低饱和暖调为基底,通过色彩、材质与细节的三重设计,实现了“视觉松弛+操作流畅”的双重新鲜体验。 一、色彩与材质:暖调基底的温柔包裹 - 柜体设计:上柜采用奶白色肤感板,下柜选用胡桃木色木纹板,通过“浅暖+深木”的色彩碰撞,平衡视觉层次; - 台面与墙面:通铺奶油白石英石台面+同色系微水泥墙面。
更多卫生间灵感
本卫浴空间以“柔和治愈+高效实用”为核心,将奶油风的温润质感与现代简约的利落线条融合,打造出甜而不腻的洗漱、沐浴与洗衣一体化空间。整体以低饱和暖调为基底,通过了色彩、材质与细节的三重设计,实现“视觉松弛+功能流畅”的双重体验。 一、空间布局:功能联动的高效利用 - 干湿分离:淋浴区以黑色细框玻璃门隔断,搭配奶油白哑光砖墙面,既保证通透感,又避免水花飞溅; - 洗衣+洗漱联动:洗衣机嵌入定制柜。
更多卫生间灵感
本浴室以“自然光影+极简功能”为设计核心,打造出兼具实用与治愈感的卫浴空间。 一、色彩与材质:柔和质感的空间基底 - 墙面与地面:浅米色通体瓷砖覆盖墙面与地面,弱化空间边界感,营造“整体化”视觉效果; - 五金与家具:黑色金属淋浴花洒、白色陶瓷洁具形成“黑+白”的经典对比,简约利落。 整体设计通过“色彩柔和化、功能一体化、自然融入化”,让浴室成为“放松身心、享受洗浴”的理想场景,适配现代需求。
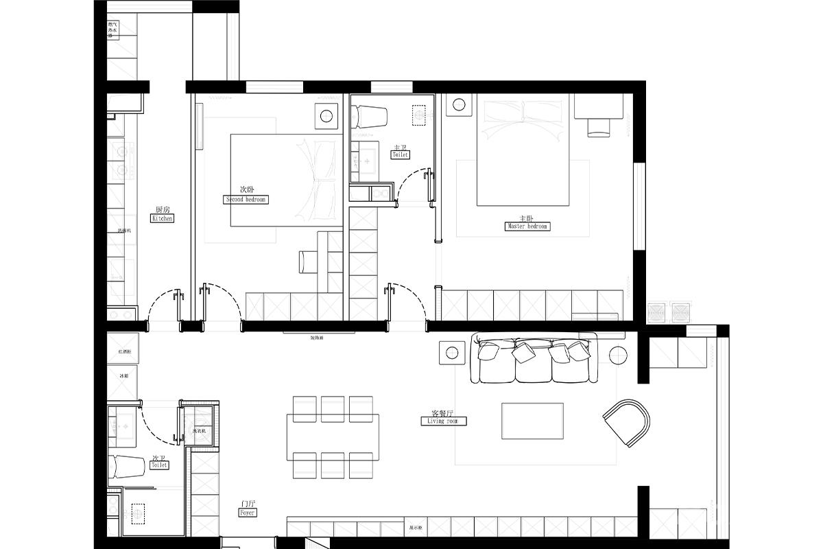
更多户型图灵感
本住宅设计为两室一厅一厨一卫格局,以“空间高效利用、动线流畅自然”为核心,适配现代家庭生活需求。 一、空间布局:功能分区与互动融合 - 公共区域:客餐厅一体化设计,客厅(沙发+茶几)与餐厅(餐桌+餐椅)无缝衔接,增强家庭互动;厨房为L型布局,紧邻餐厅,实现“烹饪-用餐”动线最短。 - 私密区域:主卧、次卧分列主卫两侧,主卧带独立空间感,次卧布局紧凑实用,主卫干湿分离(马桶+洗手台)提升使用效率