










核心基调:以低饱和奶油白、浅杏色为基础,融合现代简约的利落线条与温暖质感,打造温柔治愈的居住空间。 - 色彩搭配:墙面采用奶油白乳胶漆,局部用浅奶茶色护墙板做层次;地面选柔光米白色瓷砖或鱼骨拼木地板,避免冷感。软装以燕麦色、浅灰绿点缀,如窗帘、抱枕,拒绝高饱和色。 - 材质运用:大量使用弧形元素(拱门、圆弧沙发、圆角茶几)弱化棱角;搭配微水泥、羊羔绒、藤编等材质,增加触感温暖度;金属元素仅用黄铜细脚家具或金色小摆件,提升精致感。 - 光线规划:优先自然光,选透光性好的纱帘;主灯用云朵灯、球形吊灯,辅助以无主灯设计(磁吸轨道灯+氛围灯带),营造均匀柔和的光影。 通过“去繁就简”的线条与“温柔包裹
更多客厅灵感
- 整体采用奶油白、浅木色为主调,搭配深棕金属桌腿,营造温暖柔和的视觉氛围。 - 墙面与柜体选用哑光肤感板材,地面铺浅米色地毯,触感细腻;电视背景墙局部嵌入木饰面,增强层次。 功能与细节 - 收纳系统:定制一体化电视柜,隐藏式柜门+开放格结合,开放格内置灯带,展示摆件与书籍; - 软装搭配:圆形茶几(大理石台面+金属腿)、绿植花艺、艺术小雕塑,平衡实用与美学; - 光影设计:方形吸顶灯+柜体灯
更多客厅灵感
整体采用奶油米、浅木色为主调,搭配深棕钢琴与金属茶几腿,营造温暖柔和的视觉层次。 - 墙面选用哑光肤感板材,地面铺浅米色地毯+原木地板,触感细腻且弱化空间边界。 功能与细节 - 休闲区:条纹布艺沙发搭配多尺寸抱枕(含亮色点缀),圆形茶几(大理石台面+金属腿)提升精致感; - 艺术区:深色钢琴+艺术挂画+绿植花艺,平衡实用与美学; - 光影设计:方形吸顶灯+窗帘透光设计,营造柔和漫射光,增强空间
更多餐厅灵感
本空间以“柔和质感+精致烟火气”为核心,打造现代奶油风餐厨一体化场景。 色彩与材质 - 整体色调以奶油白、浅木色为主,搭配深棕金属桌腿,平衡暖调与精致感。 - 橱柜采用哑光奶油白+浅木饰面,局部开放格嵌入灯带,提升通透感;餐桌选大理石台面,搭配羊羔绒质感餐椅,触感温暖。 通过无主灯光影、弧形元素与低饱和色彩,将烹饪与用餐场景融入奶油风的温柔感中,既保留了现代生活的高效,又传递了“家的松弛感”。
更多餐厅灵感
整体色调以奶油白、浅木色为主,搭配深棕金属桌腿,平衡暖调与精致感。 - 橱柜采用了油白+浅木饰面,局部开放格嵌入灯带,提升通透感;餐桌选大理石台面,搭配羊羔绒质感餐椅,触感温暖。 功能与细节 - 餐厨区:开放式吧台集成咖啡机、酒具收纳,满足轻食与社交需求; - 餐厅区:长条吊灯+绿植花艺+艺术挂画,柔化空间氛围;餐椅弧形靠背设计,兼顾舒适与美学。 设计理念 通过无主灯光影、弧形元素。
更多卧室灵感
本儿童房以“温柔童趣+奶油质感”为核心,打造低龄段孩子的治愈空间。 色彩与造型 - 墙面选用浅奶茶色,搭配弧形兔耳床头(浅杏色+圆润线条),既保留奶油风的柔和,又通过卡通元素激发童趣。 - 床品以奶油白+浅杏色拼接,地面铺异形奶油色地毯,与整体色调呼应。 整体设计通过低饱和色彩、弧形元素与童趣细节,让空间兼具奶油风的治愈感与儿童房的活泼性,是现代家庭亲子空间的理想范本。搭配黄铜壁灯与绿植装饰画
更多卧室灵感
整体采用奶油米、浅木色为主调,搭配深棕床头灯与金属装饰,营造温暖柔和的视觉层次。 - 墙面选用哑光布艺硬包,地面铺浅米色地毯+原木地板,触感细腻且弱化空间边界。 功能与细节 - 睡眠区:软包床头搭配多尺寸抱枕(含几何纹样点缀),床尾毯增强层次感; - 收纳区:定制一体化衣柜,隐藏式柜门+同色设计,最大化利用空间; - 工作区:开放式书桌与衣柜衔接,嵌入置物架+电脑区,实现休憩与办公的场景切换;
更多厨房灵感
整体采用浅杏木色(下柜)+米白色(上柜)为主调,搭配银灰冰箱与黑色厨电,营造柔和且富有层次的视觉感。 - 墙面选用哑光瓷砖,台面为白色石英石,兼具耐磨与易清洁特性;上柜采用肤感板材,弱化冰冷感。 功能与细节 - 烹饪区:L型橱柜整合烟灶、嵌入式烤箱,动线流畅; - 洗涤区:水槽+龙头设计简洁,上方灯带增强操作照明; - 收纳区:上下柜+高身冰箱(十字门设计),最大化利用垂直空间; - 光影设计
更多厨房灵感
本厨房设计以“极简秩序+实用美学”为核心,打造高效舒适的烹饪空间。 色彩与材质 - 整体采用浅杏木色(下柜)+米白色(上柜)为主调,搭配银灰冰箱与黑色厨电,营造柔和且富有层次的视觉感。 - 墙面选用哑光瓷砖,台面为白色石英石,兼具耐磨与易清洁特性;上柜采用肤感板材,弱化冰冷感。 通过一体化柜体、隐藏式家电与柔和光影,将“极简美学”与“实用功能”结合,既满足高效烹饪需求,又传递出整洁治愈的生活感
更多卫生间灵感
整体采用浅灰瓷砖(墙面)+浅木色(浴室柜)为主调,搭配白色洁具与黑色五金,营造柔和且富有层次的视觉感。 - 墙面瓷砖哑光质感,浴室柜台面为白色石英石,兼具耐磨与易清洁特性;浴室柜采用肤感板材,弱化冰冷感。 功能与细节 - 洗漱区:浴室柜+镜柜+洗衣机一体化设计,镜柜暗藏灯带,提升照明与收纳; - 如厕区:智能马桶搭配电热毛巾架,兼顾舒适与实用; - 光影设计:镜柜灯带+柜底暗藏灯带,营造柔和
更多卫生间灵感
卫浴空间采用现代简约风格,以浅灰色系瓷砖为基础,营造整洁柔和的视觉氛围。左侧嵌入上下叠放的洗烘一体机,利用垂直空间实现洗衣、烘干功能整合,金属质感的机器外观与空间色调和谐统一,操作面板清晰直观。右侧淋浴区配置顶喷+手持双花洒,满足不同洗浴需求,不锈钢材质兼具耐用性与精致感。窗户搭配百叶窗,保障隐私的同时可灵活调节采光。整体设计通过功能区合理划分与材质色彩的协调搭配,实现了空间利用最大化与视觉美感。
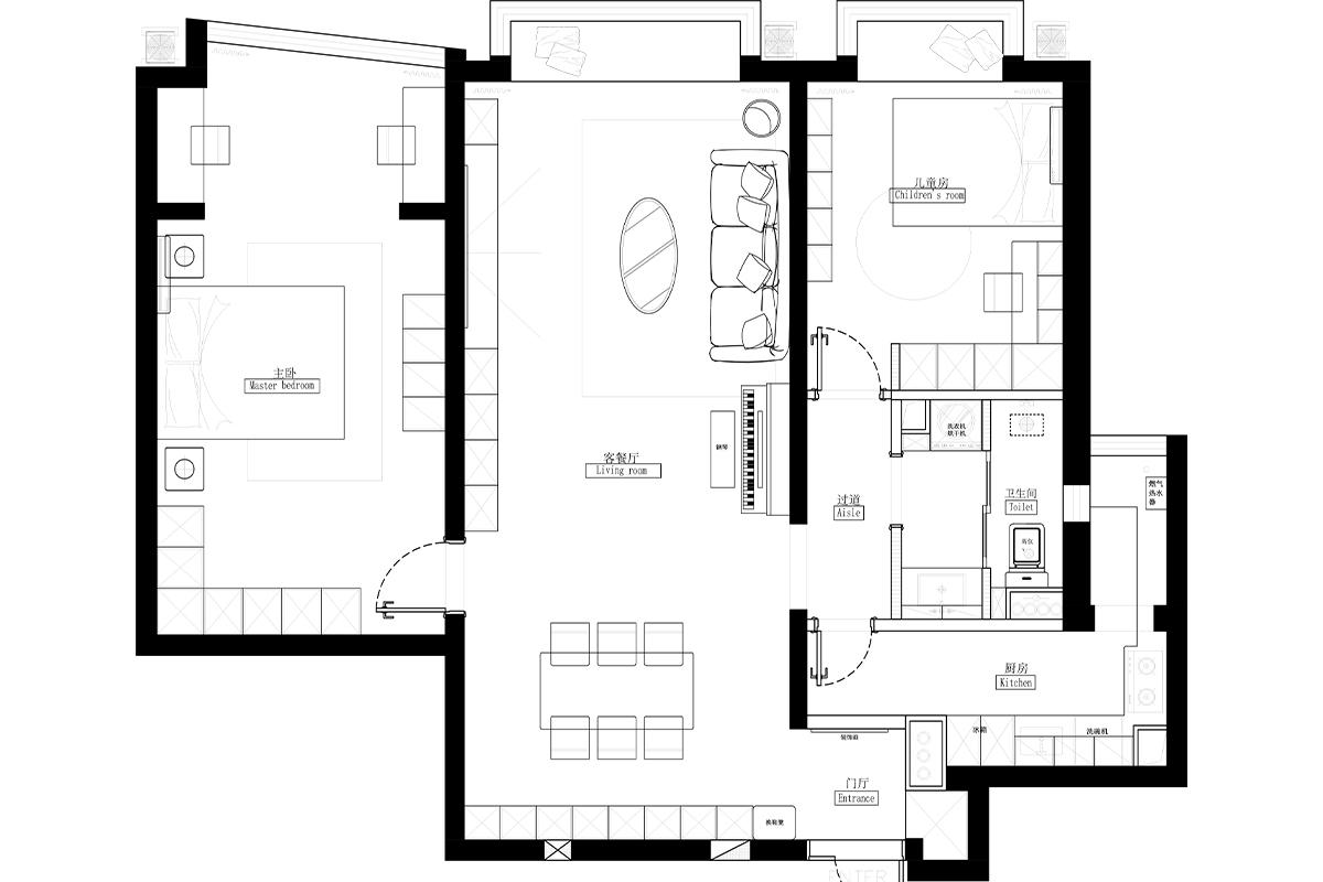
更多户型图灵感
空间布局:左侧主卧(Master bedroom)静谧独立,配备床、床头柜与衣柜,满足休憩收纳需求;中间客餐厅(Living room)一体化设计,沙发、钢琴、餐桌布局合理,既保障社交互动,又通过圆形茶几、沙发组合同化空间美学;右侧儿童房(Children’s room)紧邻过道(Aisle)与卫生间(Toilet),动线便捷且保障隐私。 - 功能细节:厨房(Kitchen)与餐厅衔接紧密。