





两室一厅的大两居空间布局方正,功能分区明确,未来给女儿居住,喜欢简单的设计,想要一个平整的生活空间,以此为条件,最终定为现代简约风。
更多餐厅灵感
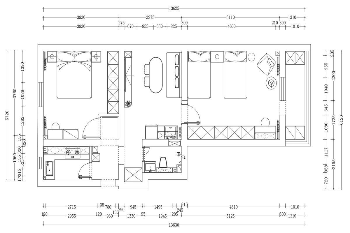
收纳上结合嵌入式柜体与卡座下隐藏储物,充分利用垂直与闲置空间;家具多功能化,卡座兼收纳、圆桌适配多元用餐场景。洗衣机嵌入式设计节省空间,电视与电视柜简约搭配兼顾影音功能,整体布局规整,完美适配小户型的居住需求。
更多卧室灵感
次卧围绕睡眠功能布局,双人床居中靠墙,两侧对称设床头柜,动线流畅;左侧窗户保障自然采光与通风,右侧规划嵌入式柜体实现储物,多处留白避免空间拥挤,尺度宽松,既满足主卧核心使用需求,又通过极简设计营造出通透清爽的居住氛围。
更多卧室灵感
主卧以对称式双床布局为核心睡眠区,床间距合理保障使用舒适度;右侧规划开放式书架+休闲椅的休闲区,兼具收纳、阅读功能;整体采用单一线性动线,家具摆放疏密有致,在有限空间内实现了睡眠与休闲的功能平衡,尺度舒适且无压抑感。
更多厨房灵感
该厨房为现代简约风格空间,核心功能亮点聚焦在实用性与效率性的双重优化:采用L型操作台布局,划分洗涤、备餐、烹饪三区,形成“洗切炒”三角动线,操作流程连贯且效率高;洗涤区旁设窗户,既提供自然采光,又能快速排出油烟,优化烹饪环境。