×
北京
手机博洛尼 售前:400-6868-692 售后:400-666-3706
所在位置/首页优秀案例/华府景园
点击浏览下一张
案例信息
  • 楼盘名称
  • 案例风格
  • 华府景园
  • 现代
  • 案例户型
  • 服务店面
  • 案例面积
  • 设计师
  • 164㎡
  • 崔洪刚
案例说明

本方案以动静分区为核心,打造两室一厅一书房的通透格局,套房主卧保障私密,大面宽阳台延伸视野,餐厨动线流畅,以现代简约的空间逻辑,兼顾功能与舒适,营造通透宜居的生活场景。

客厅
更多客厅灵感

客厅以现代简约为基调,米白与浅木色铺就温润基底,黑色钢琴成为空间艺术焦点。无主灯设计搭配线性灯带,通顶收纳柜兼顾实用与美观,开阔格局尽显通透大气的都市宜居感。

客厅
更多客厅灵感

客餐厅采用一体化通透设计,延续现代简约风格,米白主调搭配木色点缀。电视墙与餐边柜形成视觉呼应,钢琴区融入空间,动线流畅,光影层次丰富,打造兼具社交与休闲的核心场域。

卧室
更多卧室灵感

卧室遵循极简舒适原则,米白与浅木色交织出静谧氛围。悬浮床头柜搭配线性背景灯,无拉手通顶衣柜优化收纳,简约挂画与柔和灯光呼应,构建出松弛治愈的休憩空间。

书房
更多书房灵感

书房以实用与静谧为核心,原木书桌搭配舒适座椅,满足办公学习需求。飘窗延伸休闲空间,浅色系柜体与柔和光影相融,城市景观引入室内,打造高效且惬意的工作角落。

厨房
更多厨房灵感

厨房采用一字型布局,以纯白为主调,黑色家电形成经典撞色。通顶吊柜与地柜最大化收纳,嵌入式电器节省空间,线性灯带补足照明,动线清晰高效,兼具颜值与实用性。

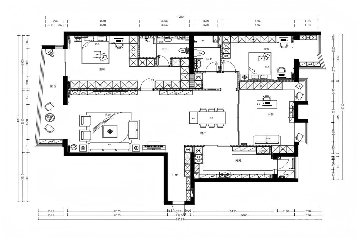
户型图
更多户型图灵感

整体空间以现代简约为基调,融入东方雅致意境,布局方正通透,功能分区合理。舒适套房、双阳台设计兼顾实用与格调,用简洁线条与温润质感,营造静谧从容、宜居雅致的品质生活空间。

本案设计师

崔洪刚

特级主任设计师

  1. 168次
  2. 预约数
  1. 12年
  2. 从业年限
  1. 8套
  2. 作品案例

预约TA

现代风格的其它案例
更多

【案例】【金茂府】现代 四居室 140㎡

渠海东 渠海东 7 844961浏览 这样装修多少钱?

【案例】【万国城】现代 二居室 130㎡

霍俐明 霍俐明 7 4381998浏览 这样装修多少钱?

【案例】【棠颂】现代 别墅 360㎡

李延玲 李延玲 12 3548103浏览 这样装修多少钱?

三居室的其它案例
更多

【案例】【富贵园】古典 三居室 200㎡

博洛尼 博洛尼 6 3481839浏览 这样装修多少钱?

【案例】【中海凯旋】古典 三居室 135㎡

于自奇 于自奇 7 5320浏览 这样装修多少钱?

【案例】【世纪城远大园】古典 三居室 140㎡

薛超 薛超 6 1674浏览 这样装修多少钱?