×
北京
手机博洛尼 售前:400-6868-692 售后:400-666-3706
所在位置/首页优秀案例/当代城市家园
点击浏览下一张
案例信息
  • 楼盘名称
  • 案例风格
  • 当代城市家园
  • 奶油
  • 案例户型
  • 服务店面
  • 案例面积
  • 设计师
  • 94㎡
  • 崔洪刚
案例说明

本方案以现代简约为核心,打造两室两卫格局,客餐厅一体通透,套房主卧保障私密,双卫设计提升效率,大面宽阳台延伸视野,以流畅动线与温润质感,构建兼具仪式感与舒适度的宜居空间。

客厅
更多客厅灵感

客厅融合法式线条与中古风韵,暖棕皮革沙发搭配实木柜体,质感温润。石膏线与艺术挂画勾勒精致,全景窗引入自然景致,光影交织间,营造出复古优雅又松弛的社交休憩空间。

餐厅
更多餐厅灵感

餐厅以奶白为底、胡桃木为缀,简约餐桌搭配布艺餐椅,温馨雅致。双吊灯精准控光,通顶收纳柜兼顾实用与美观,与厨房流畅衔接,打造出兼具烟火气与仪式感的用餐场域。

卧室
更多卧室灵感

卧室延续法式复古基调,石膏线背景墙搭配简约挂画,优雅细腻。奶白床品与胡桃木床头柜冷暖平衡,通顶衣柜隐藏收纳,柔和灯光加持,构建出静谧治愈的休憩天地。

厨房
更多厨房灵感

厨房以法式复古为魂,奶白柜体搭配胡桃木点缀,花砖墙面点亮空间。L型布局动线高效,嵌入式电器节省空间,百叶窗调控光影,实现了颜值与实用主义的完美契合。

卫生间
更多卫生间灵感

卫生间以复古花卉瓷砖为视觉焦点,搭配胡桃木柜体与白色台盆,法式风情浓郁。镜柜与壁龛优化收纳,线性灯带补足照明,黑线条勾勒层次,打造出精致又清爽的卫浴空间。

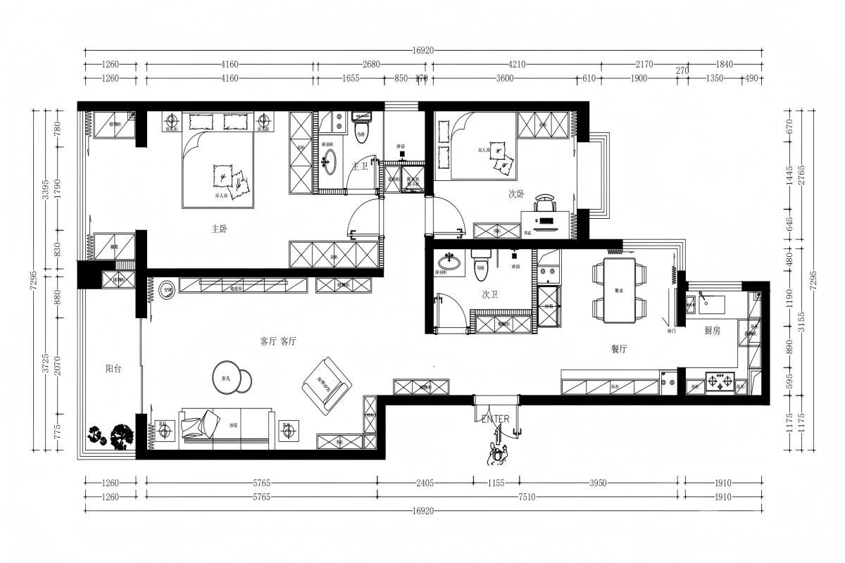
户型图
更多户型图灵感

本方案打造两室两卫舒居格局,客餐厅一体化联动阳台,采光视野极佳。双卫设计兼顾便捷与私密,餐厨动线流畅,全屋精细化收纳布局,以合理动线构建兼具通透感与实用性的现代宜居空间。

本案设计师

崔洪刚

特级主任设计师

  1. 168次
  2. 预约数
  1. 12年
  2. 从业年限
  1. 8套
  2. 作品案例

预约TA

奶油风格的其它案例
更多

【案例】【澳林观邸】奶油 四居室 200㎡

康明 康明 9 73872浏览 这样装修多少钱?

【案例】【首城国际】奶油 二居室 150㎡

叶曼 叶曼 6 515534浏览 这样装修多少钱?

【案例】【豪柏公寓】奶油 三居室 128㎡

蒋胜 蒋胜 6 3643浏览 这样装修多少钱?

二居室的其它案例
更多

【案例】【御墅临枫】古典 二居室 180㎡

魏焕和 魏焕和 7 3815浏览 这样装修多少钱?

【案例】【民岳家园】古典 二居室 100㎡

尚君 尚君 6 3452浏览 这样装修多少钱?

【案例】【世纪城】古典 二居室 125㎡

赵保祚 赵保祚 6 3370865浏览 这样装修多少钱?