








这个空间以现代简约风格为设计主调,摒弃繁琐装饰,追求简洁纯粹之美。整体布局强调功能性,空间开阔通透,动线流畅自然,各区域既相互独立又彼此联系。色彩上,以中性色为基底,营造沉稳大气的氛围,局部点缀亮色,增添活力与层次感。家具选择简约造型,线条利落,注重实用性与舒适性。材质方面,运用木材、石材与金属等,通过不同质感的搭配,丰富空间体验。灯光设计以间接照明为主,柔和的光线营造出温馨惬意的氛围。装饰元素精简,仅以少量艺术挂画或绿植点缀,避免冗杂。整个空间在设计上做减法,去除一切不必要的造型与装饰,以简洁的形式、实用的功能,打造出舒适、宁静且富有质感的居住环境,满足现代人对简约生活的追求。
更多客厅灵感
客厅展现出简约风格的独特魅力。墙面以纯净的米白色为底,搭配黑色边框的折叠窗,形成鲜明对比,增添空间层次感。窗内开放式搁架陈列着趣味摆件,为空间注入活力。浅米色沙发柔软舒适,其上搭一条棕色毯子,带来温暖质感。地面铺有浅色纹理地毯,与木地板相得益彰。电视背景墙简洁大方,大屏幕电视成为视觉焦点。天花板采用无主灯设计,隐藏式灯带营造出柔和、温馨且富有氛围感的光线环境,尽显简约而不失格调的生活品味。
更多客厅灵感
客厅秉持简约风格设计理念,整体给人简洁、舒适的视觉感受。空间以米白与木色为主色调,自然温和。墙面干净利落,壁灯散发着柔和的光线,增添温馨氛围。浅米色的沙发造型简约,搭上一条棕色的毯子,为空间增添一抹暖意。地面铺有带有几何纹理的浅色地毯,丰富了视觉层次。一侧别出心裁地设置了一个内嵌式玻璃窗洞,既增加了空间的通透感,又带来独特的展示效果。整个客厅布局紧凑合理,以简洁的形式展现出实用与美观的完美融合。
更多餐厅灵感
餐厅以简约风格打造,营造出温馨且利落的用餐氛围。整体色调以暖米色与木色为主,自然质朴。墙面与天花板衔接处嵌入灯带,提供柔和的间接照明,增添空间层次感。木质餐桌造型简洁,搭配两把金属与木质结合的椅子,实用又美观。墙上设置开放式搁架,内置灯带,既可展示装饰品,又能收纳物品。一盏独特的吊灯垂落于餐桌上方,成为视觉焦点。背景处的柜体设计兼顾收纳与操作功能,大理石台面更显精致,整体空间简约而不失格调。
更多卧室灵感
卧室以简约风格打造,呈现出宁静舒适的休憩氛围。空间整体以米白与木色为主,色调柔和温暖。定制的一体化柜体与床相连,充分利用空间,提供充足的收纳功能,局部的开放式搁架可摆放装饰品或书籍。床头背景墙简洁干净,上方悬挂几幅趣味挂画,增添活泼气息。大窗户引入自然光线,使室内明亮通透。无主灯设计,以隐藏式灯带提供柔和照明,营造出温馨的睡眠环境。整个卧室布局紧凑合理,以简洁的形式满足实用与美观的双重需求。
更多厨房灵感
厨房以简约风格为设计基调,展现出简洁利落的特质。整体空间采用米白与木色的经典搭配,营造出温馨自然的氛围。L型橱柜布局合理,白色柜门搭配木质柜体,简洁大方且收纳功能强大。大理石台面质感十足,与旁边的吧台相连,形成连贯的操作与用餐区域。墙面铺设浅色瓷砖,方便清洁。吊柜下方嵌入灯带,提供充足的操作照明。一盏别致的吊灯悬于吧台上方,增添空间亮点。整个厨房设计删繁就简,注重实用性与美观性的平衡,尽显简约生活
更多儿童房灵感
这间多功能房以简约风格呈现,巧妙融合实用与美观。空间以米白与木色为主色调,营造出温暖而宁静的氛围。入门处打造了嵌入式书桌与书架组合,书架开放式设计方便拿取书籍,书桌搭配简约的黑色座椅,满足工作学习需求。房间另一侧摆放着一套架子鼓,为兴趣爱好提供空间。墙面与天花板采用简洁的线条处理,无过多装饰。木地板增添自然质感,不规则形状的地毯柔化了空间。整体布局紧凑合理,在有限空间内实现了功能的多样化,尽显简约
更多儿童房灵感
孩子房以简约风格设计,营造出温馨且富有活力的空间。整体色调以米白与木色为主,自然柔和。房间内设置高架床,下方空间巧妙利用,形成孩子的娱乐与兴趣区域。一套架子鼓和一把吉他摆放其中,为孩子提供发展爱好的天地。床侧的楼梯设计成抽屉式,增加收纳功能。大窗户引入充足自然光,使房间明亮通透。圆形吸顶灯提供均匀柔和的照明。整个房间布局紧凑合理,在简约的设计中,充分满足孩子的生活与成长需求,充满童趣与实用性。
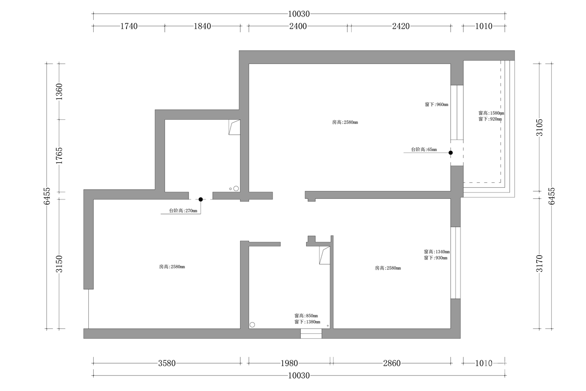
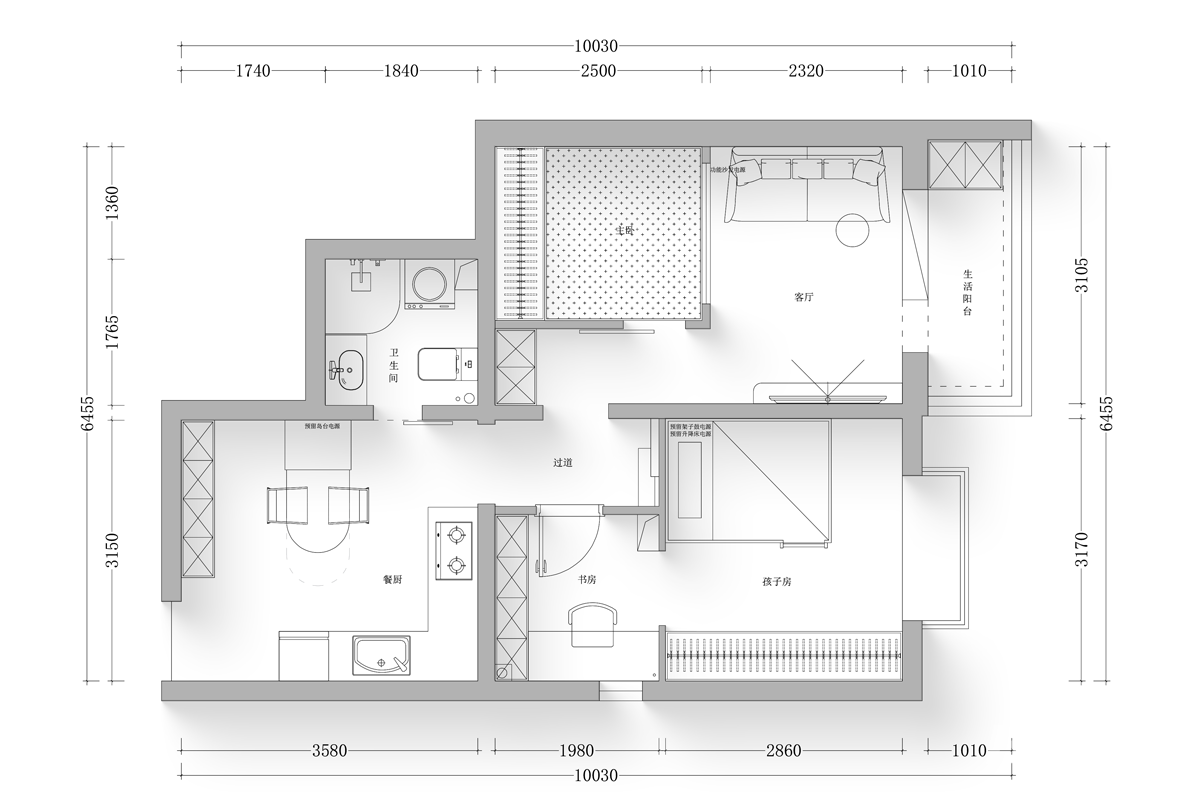
更多户型图灵感
本设计采用简约风格,空间平面布局注重功能性与流畅性。入口即达餐厨区域,方便日常起居与用餐。客厅与生活阳台相连,保证充足采光与通风。主卧空间规整,配备独立收纳区域,提升居住舒适度。孩子房与书房相邻,便于孩子学习与休息,同时设置兴趣空间。卫生间干湿分离,提高使用效率。整体布局中,各功能区既相互独立又紧密联系,动线合理,减少空间浪费,以简洁的布局和实用的设计,打造出舒适宜居的生活环境。