×
北京
手机博洛尼 售前:400-6868-692 售后:400-666-3706
所在位置/首页优秀案例/朝阳门北小街南弓匠营胡同
点击浏览下一张
案例信息
  • 楼盘名称
  • 案例风格
  • 朝阳门北小街南弓匠营胡同
  • 现代
  • 案例户型
  • 服务店面
  • 案例面积
  • 设计师
  • 73㎡
  • 王锋
案例说明

客户为三口之家,想要储物空间,整体设计以奶咖色为主,搭配棕色作为点睛之笔,为整体营造简单浪漫的温馨氛围

客厅
更多客厅灵感

整体色调以奶咖色为主,加上花瓣吊灯营造简单舒适的居家氛围,大理石餐桌更加结实耐用,整个空间以棕色灰色进行点缀,突出空间真实感

卧室
更多卧室灵感

整面背景墙做了墙板搭配花瓣主灯整体空间更加温馨自然,以绿色为点缀作为椅凳设计,整体空间甜而不腻,更加温馨

厨房
更多厨房灵感

厨房采用U型设计,利用台面增加储物空间的同时最大限度利用了洗切炒的可操作空间,方便实用,利用吊柜增加了储物空间

儿童房
更多儿童房灵感

整个空间以南瓜橙为点缀色直接给人眼前一亮的感觉,整个床体无床头只有靠背,衣柜采用玻璃门设计在兼顾储物的同时既美观又实用,搭配花瓣主灯与毛毯设计,整体空间更加温馨自然

卫生间
更多卫生间灵感

卫生间采用淋浴房设计,整体色调以奶咖色为主,搭配窗户,整体空间整洁明亮,淋浴房增加壁龛设计更大限度的增加了储物空间

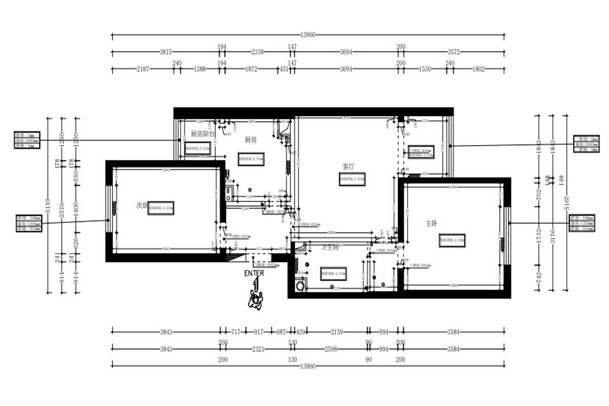
户型图
更多户型图灵感

客户为三口之家,整体空间已简单实用为主,通过柜体设计增加储物空间,搭配奶咖色色调和棕色颜色点缀整个空间更加温馨与自然

本案设计师

王锋

主任设计师

  1. 168次
  2. 预约数
  1. 17年
  2. 从业年限
  1. 42套
  2. 作品案例

预约TA

现代风格的其它案例
更多

【案例】【金茂府】现代 四居室 140㎡

渠海东 渠海东 7 845504浏览 这样装修多少钱?

【案例】【万国城】现代 二居室 130㎡

霍俐明 霍俐明 7 4382481浏览 这样装修多少钱?

【案例】【棠颂】现代 别墅 360㎡

李延玲 李延玲 12 3548906浏览 这样装修多少钱?

二居室的其它案例
更多

【案例】【御墅临枫】古典 二居室 180㎡

魏焕和 魏焕和 7 4987浏览 这样装修多少钱?

【案例】【民岳家园】古典 二居室 100㎡

尚君 尚君 6 4857浏览 这样装修多少钱?

【案例】【世纪城】古典 二居室 125㎡

赵保祚 赵保祚 6 3372012浏览 这样装修多少钱?